Dom na sprzedaż Białystok, Dojlidy Górne

4 pokoje
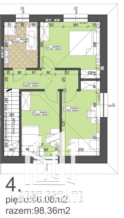
98.36 m²
7 116,71 zł/m2
BEES-DS-84
Oblicz ratę kredytu

700 000 zł

Dom na sprzedaż

Szczegóły oferty

Symbol oferty BEES-DS-84
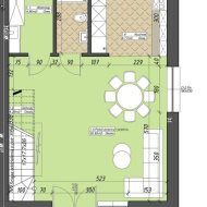
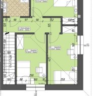
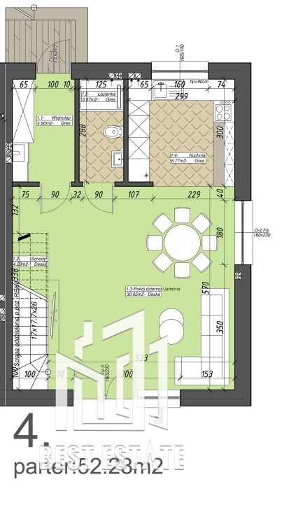
Powierzchnia 98,36 m²
Powierzchnia użytkowa [m2] 98,36 m²
Powierzchnia działki [m2] 193 m²
Liczba pokoi 4
Liczba sypialni 3
Rodzaj domu bliźniak
Standard
Garaż w bryle
Okna PCV
Instalacje nowe
Pokrycie dachu dachówka
Stan budynku do wykończenia
Ogrodzenie działki metalowe
Rok budowy 2025
Gaz jest
Woda tak - miejska
Ogrzewanie C.O. GAZOWE
Prąd jest
Kanalizacja tak

Opis nieruchomości

--------------------OSTATNI DOM - REZERWACJA ------------------------

DOMKI NA DOJLIDACH – BLIŹNIAKI GOTOWE NA NOWE ŻYCIE (I GRILLA)!
 

Czas na rodzinne El Dorado... czyli cztery domy bliźniacze, gotowe na nowych właścicieli z wyobraźnią, planem i może... zestawem mebli z IKEI.
UWAGA - W SPRZEDAŻY ZOSTAŁ JEDEN ALE ZA TO Z DZIAŁKĄ 700M2!!!!

Lokalizacja: Dojlidy, Białystok – tu wiewiórki mają więcej spokoju niż ty w centrum, a powietrze ma smak wakacji i ogórków małosolnych.

Co w zestawie?

 - 98m² powierzchni użytkowej – tyle, że dziecko ma gdzie jeździć na hulajnodze, a ty masz gdzie się schować, kiedy przyjdą goście.
 - 193 m² działki – czyli ogródek z potencjałem: leżak i strefa grillowa - obowiązkowa. DO DOKUPIENIA 635m2 działki obok segmentu do wyłącznego korzystania, otoczonej choinkami w mieście!!! - za jedyne 150 000zł!
 - 4 pokoje (3 sypialnie) – dla rodziny, gości albo kolekcji roślin, które "tylko podlejesz raz w tygodniu".
 - Wszystkie media (z piecem gazowym) – czyli żyjesz jak na wsi, a luksus jak w mieście!
 - Stan deweloperski – pusto, czysto, gotowe na twoją wizję. Możesz się poczuć jak Bob Budowniczy (albo Joanna z Instagrama).
 - Strych do zagospodarowania – dodatkowe metry na hobby, jogę albo po prostu do schowania życia, które nie mieści się w szafie.

Dla kogo?

- Dla rodziny z dziećmi, która marzy o spokojnej okolicy, a jednocześnie chce być blisko miasta.
- Dla tych, którzy chcą mieć bliźniaka, bo jeden sąsiad za ścianą zupełnie wystarczy
- Dla osób, które cenią łatwy dojazd, strefę miejsko wiejską i chcą mieć w końcu coś więcej niż M3

Oferta limitowana – tylko tutaj możliwośc powiększenia działki za symboliczną cenę!

Nie czekaj, bo inni już czytają i klikają. A ty możesz mieć DOM. Na Dojlidach zapach przyrody i oddech miasta w jednym!

Zadzwoń zanim Twoja przyszłość stanie się czyjąś teraźniejszością! 

Zaopiekujemy się Tobą w zakresie kredytu, sprzedaży ewentualnego mieszkania, które ma zastąpić "domek", a nawet możemy Ci wykończyć pod klucz!
ZAPRASZAMY!

Strona dewelopera: https://uniwersumdevelopment.pl/

Kalkulatory

Kalkulator kredytowy

Wysokość raty

PLN
%

Kalkulator kosztów

Taksa notarialna
(opłata notarialna)

Wniosek o wpis do KW

VAT od prowizji
agencji nieruchomości

VAT od taksy notarialnej
(opłaty notarialnej)

Prowizja agencji nieruchomości

Wypisy aktu notarialnego

Razem

Uwaga: mogą wystąpić dodatkowe opłaty za założenie księgi wieczystej oraz ustanowienie hipoteki.

PLN
PLN
PLN
PLN
PLN
%
PLN

Manager

Proszę wprowadzić poprawne imię i nazwisko
Proszę wprowadzić poprawny numer telefonu
Proszę wprowadzić poprawny adres e-mail
Proszę zaznaczyć wymagane zgody
Rozwiąż równanie:
10 9
Niepoprawny wynik